首页
关于我们
产品中心
案例分享
联系我们
EN
产品中心
/PRODUCT
5A标化部品
5A标化板材
5A标化厨房间
5A标化卫生间
5A居住屋
5A标化屋
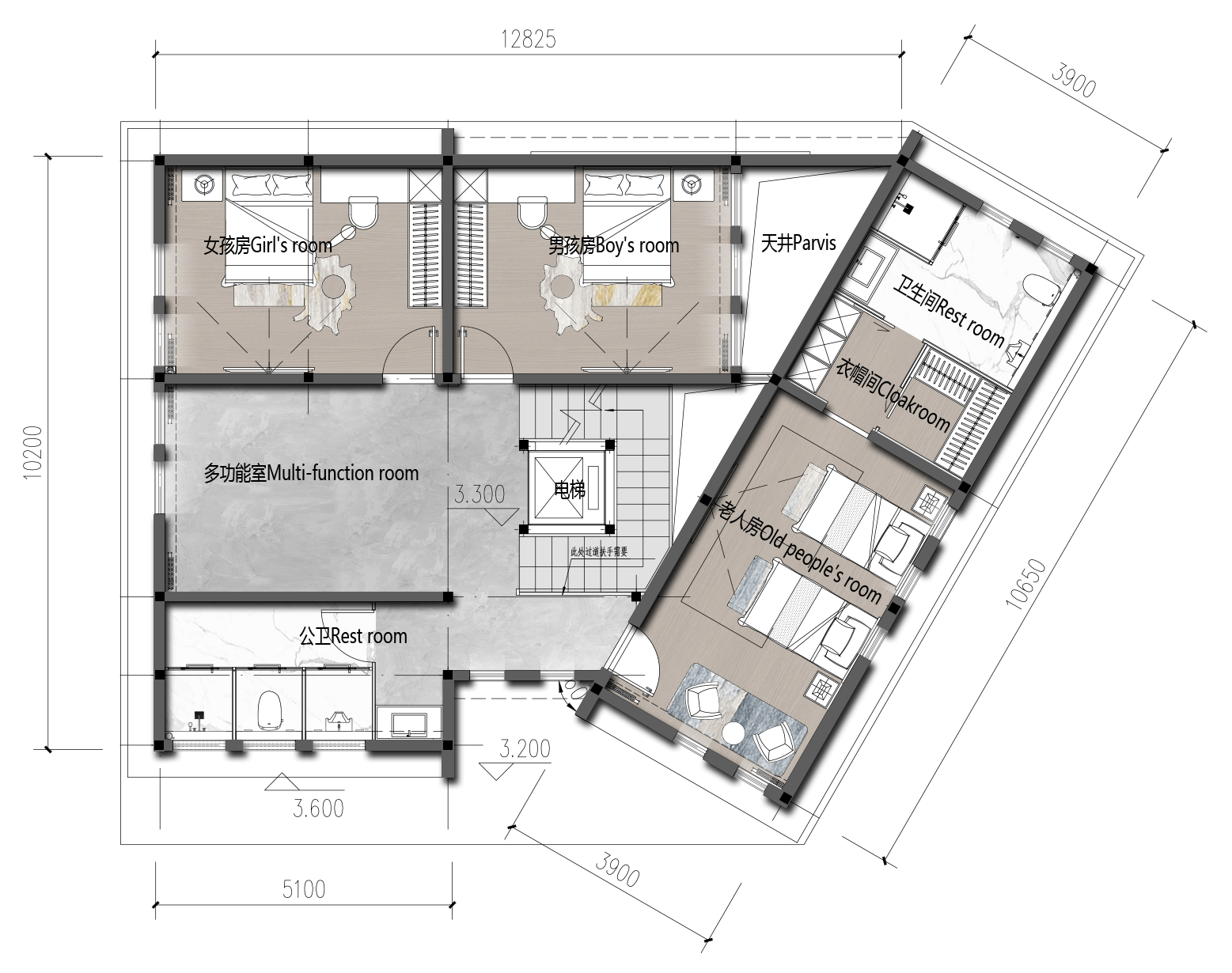
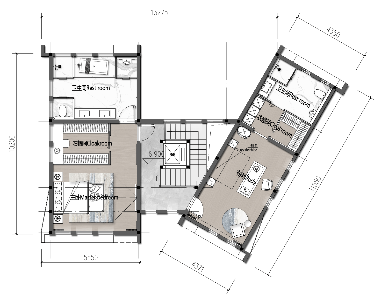
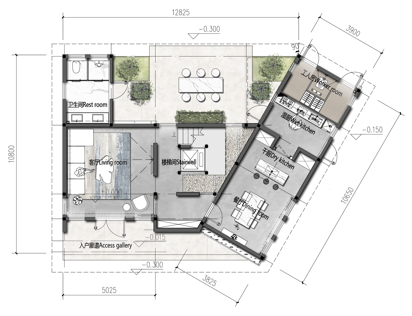
5A别墅屋
5A度假酒店屋
5A标化公共卫生间
5A经典型
5A卓越型
5A豪华型
视频中心
当前位置:
首页
>>
产品中心
>>
5A居住屋
>>
5A别墅屋
5A别墅屋